
服務熱線:15829680868
公司郵箱:578427336@qq.com
公司網址:www.psykaoyan.cn
公司地址:西安市高新區丈八街辦長安科技園
發展大道25號歐凱創業小鎮4樓401室
產品特點:
1.控制系統完全按照醫用電氣系統安全要求設計,并可根據醫院方的要求采取多種控制方式,不對同一環境的其他設備形成電磁干擾;
2.動力梁及門體直接外掛于墻體,安裝快速簡單;
3.門體配裝安全感應器,可自動檢測到位于門體中間的障礙物,防夾,使門保持開啟,保障行人或設備安全;
4.獨特的下沉方式,最大下沉距離15mm,向內10mm,增加一定氣密性。
5.整體運行輕快安靜,室內外隔音效果好;
技術參數:
開門運行速度 250-500mm/s(可調)
閉門運行速度 250-500mm/s(可調)
開放時間 2-20s(可調)
緊閉力F >70n
手動推力 <100n
整機消耗功率 <150w
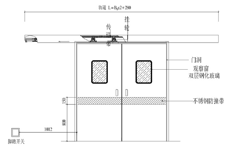
結構示意: