
服務熱線:15829680868
公司郵箱:578427336@qq.com
公司網址:www.psykaoyan.cn
公司地址:西安市高新區丈八街辦長安科技園
發展大道25號歐凱創業小鎮4樓401室
應用場景
適用于醫院手術室、實驗室、設備室,還有食品廠,醫用器械廠等需要清潔、密閉的場所。
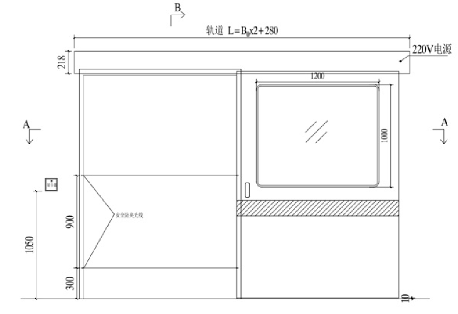
產品特點
外配圓管拉手,內配暗拉手,保證門扇完全閉啟
控制系統完全按照醫用電氣系統安全要求設計,并可根據醫院方的要求采取多種控制方式,不對同一環境的其他設備形成電磁干擾;
動力梁及門體直接外掛于墻體,安裝快速簡單;
門體配裝安全感應器,可自動檢測到位于門體中間的障礙物,防夾,使門保持開啟,保障行人或設備安全;
獨特的下沉方式,最大下沉距離15mm,向內10mm,增加一定氣密性。
整體運行輕快安靜,室內外隔音效果好;
技術參數
· 開門寬度(單):900-2000mm
· 最大門重(單):200kg
· 開門速度(單):0.15m/s-0.45m/s
·
關門速度(單):0.10m/s-0.45m/s
· 開放時間 :2-20s(可調)
· 緊閉力F: >70n
· 手動推力:<100n
· 整機消耗功率:<150w
技術參數