
服務熱線:15829680868
公司郵箱:578427336@qq.com
公司網址:www.psykaoyan.cn
公司地址:西安市高新區丈八街辦長安科技園
發展大道25號歐凱創業小鎮4樓401室
應用場景:
產品適用于醫院診室門,病房門及其它辦公區域。
產品特點:
1.鋼制門材質為環保鍍鋅鋼板,表面靜電噴塑,抗污,抗菌,耐腐蝕,綠色環保;
2.方便行動不便的病患出入,便利于醫護人員出入,水平開啟更大程度節省空間,保障無障礙通行;
3.鋼門扇表面采用無接縫工藝,簡潔,美觀,易于清潔;
4.配用尼龍拉手,高品質五金抗菌靜電噴涂,減少細菌滋生。
5.高品質的滑軌及阻尼緩沖結構,保障開啟靜音,輕便靈動。
技術參數:
門框鋼板厚度··································1.5mm
門扇鋼板厚度··································0.8mm
門寬度/高度·····································2000*2500mm
內部填充···········································高強度紙蜂窩
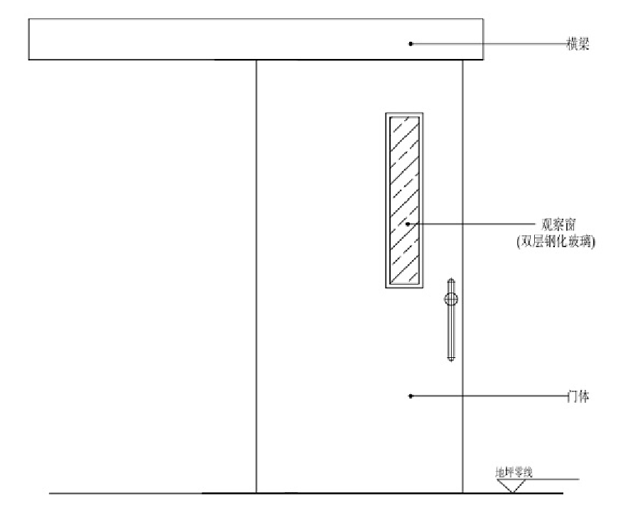
結構示意: