醫用門_氣密門_手術室門_病房門_醫用子母門_醫用自動門_西安捷申達門業服務熱線:15829680868
公司郵箱:578427336@qq.com
公司網址:www.psykaoyan.cn
公司地址:西安市高新區丈八街辦長安科技園
發展大道25號歐凱創業小鎮4樓401室
70n的重型防輻射自動門,能夠滿足大部分有防輻射要求的場所,不會產生電磁干擾。" />

產品特點:
1.內襯鉛板,鉛當量1-3mmpa,可遮蔽X射線,防止多種有害射線泄露對人體傷害,通過中國疾病預防中心輻射防護與核安全醫學所檢測,符合診斷X射線防護要求(輻安檢字2006-087號);
2.門體型材及門框裝有密封條,能滿足醫院等場所的潔凈要求;
3.控制系統完全按照醫用電器系統安全要求設計,并可根據醫院方的要求采取多種控制方式 ,不對同一環境的其他設備形成電磁干擾;
4.可采用平移或氣密式自動門做載體,可采用外掛式或嵌入式安裝方式,美觀大方。
技術參數:
開門運行速度 250-500mm/s(可調)
閉門運行速度 250-500mm/s(可調)
開放時間 2-20s(可調)
緊閉力F >70n
手動推力 <100n
整機消耗功率
<150w
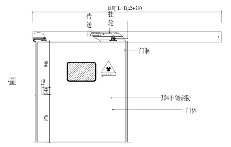
結構示意:

